1890 – Public Library & Reading Rooms, Kensal Town, London
Architect: Karslake & Mortimer

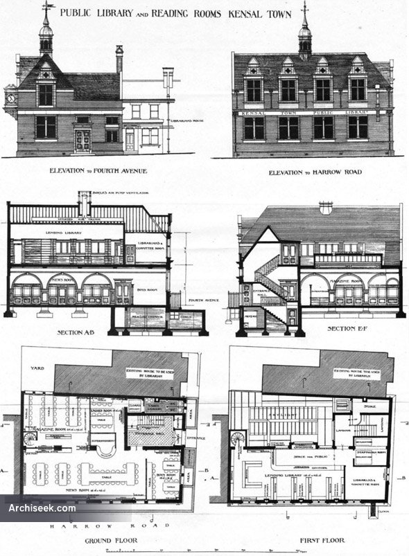
Selected design for a Public Library & Reading Room. Elevations, sections & plans published in The Building News May 25th 1888. Now known as Queens Park Public Library.
Published January 13, 2011
